(254) 547-2116
Home
Vacancies
Tenants
Pay Rent Online
About Us
Contact Us
Pay Rent
Floor Plans
Property Details
Floor Plans
Photo Gallery
Walt Morgan Duplexes
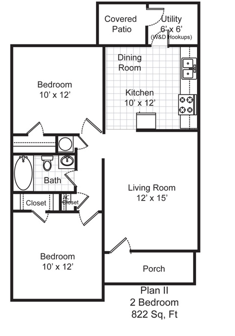
THE BRENHAM
2 Bedroom, 1 Bath, 822 Sqft
Button
THE ABILENE
2 Bedroom, 1 Bath, 711 Sqft
Button
Dewald Properties Main Site
2123 E Business 190, Copperas Cove, TX 76522, United States
(254) 547-2116
(254) 542-7916
DPPM@DewaldProperties.com
Office Hours
Monday 8:30am-5:30pm
Tuesday 8:30am-5:30pm
Wednesday 8:30am-5:30pm
Thursday 8:30am-5:30pm
Friday 8:30am-5:30pm
Saturday & Sunday CLOSED
Sitemap
© 2022 All Rights Reserved.
Dewald Properties Main Site
Share by: